去搜索

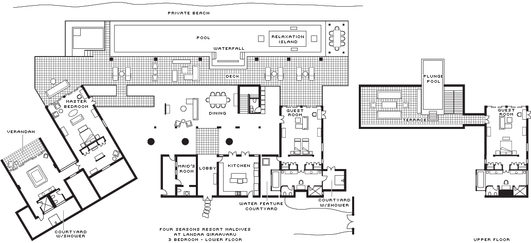
Three-Bedroom Landaa Estate 三卧室兰达宅邸 (特色房型)

非凡的海滨假日加上温馨的居家体验,这就是我们为您营造的奢华居所。三卧室双层宅邸配有 80 米私家海滩、两个泳池、观星休息区和宽敞的户外起居空间,25 米海滨泳池任你开怀畅泳,而第二层泳池通过壮观的瀑布泻入其下的主泳池。另外还有贴心敬业的工作人员提供 24 小时协助。

/5

服务与设施

睡床及卫浴

・ 可按宾客需求提供羽绒枕或防过敏枕头及羽绒被

・ 42 英寸等离子电视,配卫星频道

・ 带 DVD 播放器和 MP3 线缆的视听系统

・ ila 品牌有机沐浴用品

・ 户外淋浴

酒店免费设施与活动

・ 每日两次客房保洁与开夜床服务

・ 每日供应新鲜水果、兰达矿泉水、咖啡和茶

・ 两台设备全酒店范围内接入网络

・ 12 岁(含)以下儿童海滩必备用品

房型介绍/位置/地图

・ 面积:800 平方米,1套

・ 床位:2 张特大床和 2 张单人床

・ 容纳人数:6 名成人和 5 名儿童(1 人住在独立佣人房中)

・ 加床:2 张沙发床和 3 张折叠床

・ 位置:海岛东南侧

・ 景观:南朝巴阿环礁联合国教科文组织世界生物保护圈

・ 浴室:3 间设备齐全的浴室、1 间客用卫生间和 2 个室外花园淋浴

/2

关于预定

儿童政策

加床政策根据您所选定的客房而有所不同,更多详情请查看您所选定的客房人数限制,儿童指 12 岁及以下的客人。

在客房居住空间允许的情况下,酒店对于与父母或监护人同住的 12 岁以下儿童客人不收取额外费用。

住客年龄不得低于0岁

其他

预订超过5间客房时,需遵循不同的政策和额外的补充条款。

取消:请于预计抵达日前至少 45 天申请取消预订。取消预订政策会根据抵达日期和客房类型的不同而各异。请在预订时查看取消预订政策及押金要求的相关详情。

入住/退房办理

入住办理起始时间: 14:00

退房办理截止时间: 12:00

相关内容
Sunrise/Sunset Water Villa with Pool 日出/日落水上泳池别墅
7191 0
Sunrise/Sunset Water Villa 日出/日落水上别墅
6693 0
Voavah private island 四季沃亚瓦私人岛
11005 0
Two-Bedroom Royal Beach Villa 双卧室皇家海滩别墅 (特色房型)
5589 0
Family Beach Villa with Pool 带泳池的家庭海滩别墅
5922 0
5651
0
马代行程专家定制

为了您更好的体验,建议您前往wee旅【微信 / 百度小程序】查看。搜索wee旅即可体验。