去搜索

Deluxe Beach Villa with Pool 豪华海滩泳池别墅

豪华海滩泳池别墅拥有私属无边泳池,走出房门便是洁白的沙滩,每天的第一缕晨曦可以直接照到房间里哦~

豪华海滩泳池别墅就矗立在海边不远处,马尔代夫绝美的日出就是最棒的起床铃。别墅拥有超宽敞的居住空间,豪华的泰式装修风格和现代化的设施,保证给客人以最佳入住体验。岛上原始的热带植被就是最好的围墙,可以充分的保护客人的隐私。豪华海滩泳池别墅还拥有豪华的私人无边泳池和露天花园浴室。

房型照片

/2

房型/设施/位置

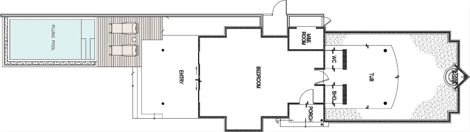
·房间面积:122㎡

·套数:7

·免费有线和无线高速上网

·每日免费提供瓶装水

·管家服务(06:00至午夜)

·度假酒店内每日提供观光车服务

·小冰箱、雀巢咖啡机和泡茶设施

·博士环绕立体声音响系统

·大书桌,带人体工学座椅

·高级洗浴用品

·户外淋浴花洒

/2

关于预定

儿童及加床

·0-2岁婴儿 [含2岁]:在不加床的情况下可免费入住。(可按要求提供婴儿床/儿童床)

·3-11岁儿童 [含11岁]:需要加床,如使用加床,需额外收费。

·12岁及以上客人将被视为大人,必须使用加床,需额外收费。

入住/退房办理

·入住办理起始时间: 14:00

·退房办理截止时间: 12:00

相关内容
2-Bedroom Beach Residence with Pool 双卧海滩泳池居所
6841 0
Beach Villa With Pool 海滩泳池别墅
7389 0
2-Bedroom Ocean Pavilion with Pool 双卧海洋泳池居所
7375 0
Ocean villa with pool 海洋泳池别墅
7793 0
Two-Bedroom Family Beach Villas 双卧家庭别墅
6410 0
7624
0
马代行程专家定制

为了您更好的体验,建议您前往wee旅【微信 / 百度小程序】查看。搜索wee旅即可体验。